Номера телефонов №1
+79226193334
Email 1:
ekb.psr@mail.ru

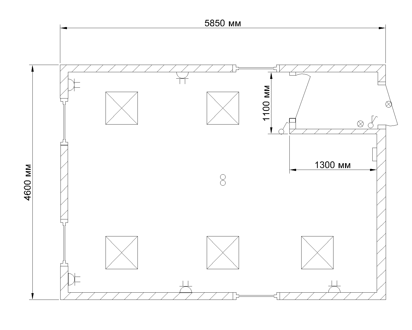
БЫТОВКА ТИП БК-3 "Штаб"

Описание.

Бытовка БК-3 с тамбуром  представляет собой универсальную и практичную модульную конструкцию, используемую для разнообразных целей, начиная от временного проживания и заканчивая организацией пространства для бизнеса и производственных нужд.

Вагончик строительный Д-5,85м, Ш-4.60м, В-2,40м с тамбуром (1.1х1.3 м) обладает мобильностью, простотой транспортировки и низкими затратами на обслуживание. Каркас, изготовленный из металла и дерева, обеспечивает устойчивость и долгий срок службы конструкции. Слой теплоизоляции, позволяет применять бытовки в различных климатических условиях. 

Вагончик строительный применяется в различных отраслях в качестве:

  • временного жилья на строительных и производственных площадках;
  • помещений для хранения оборудования и инструментов;
  • административных или жилых зданий;
  • санитарных блоков;
  • дачных домиков;
  • организации временных офисов;
  • хозблоков и т. д.

Вагончик можно взять в аренду или мы можем изготовить её для вас по индивидуальным размерам. 

Изготовление и аренда БК-3 "Штаб"

Характеристики
Площадь м.кв13.455
Длина, м5.85
Ширина м2.30
Высота, м2.40
Наружная отделкаПрофлист оцинкованный С8 толщиной 0,4 мм
Напольное покрытиеЛинолеум/ДВП/ОSB/Ламинат
ОкноПВХ
Утепление, мм50